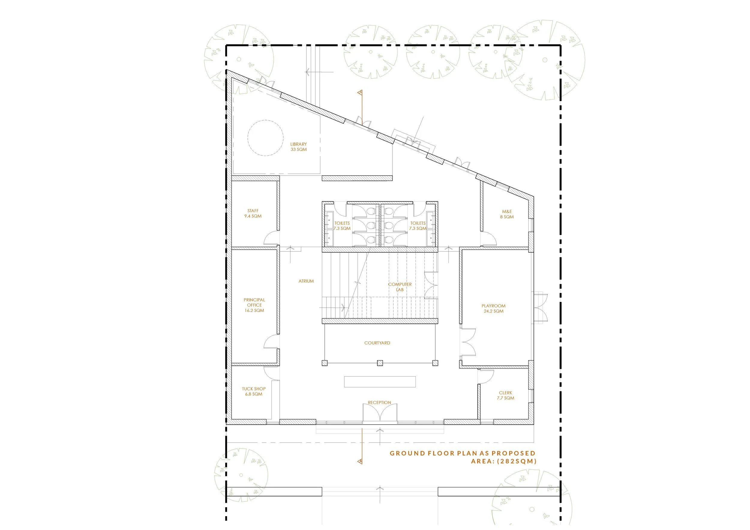
Najaf School is designed to support the local orphans of Iraq who have suffered great turmoil and are in dire need of support and education.
Type Residential
Budget £1.1Million
Size 500 SQM
Location Najaf, Iraq
Status Completed
Type Residential
Budget £1.1Million
Size 500 SQM
Location Najaf, Iraq
Status Completed